200 houses in Dewsbury
The town of Dewsbury barely has a high street anymore. A beautiful industrial town is still somewhat visible beneath bookmakers and takeaways. he centre of Dewsbury desperately needs to be repopulated by both people and money. Why then would anyone allow for 200 houses to be built on greenfields away from the centre, next to a pristine A-road that is the fastest route out of town?
http://www2.kirklees.gov.uk/business/planning/application_search/detail.aspx?id=2014%2f90780
Its just houses, lots of houses, not a place, and doesn’t acknowledge Dewsbury. Just houses and targets and spreadsheets and yields.
Not an urban culture, and not a rural culture. Middle England likes to sit on the fence, assuming to reap the best of both, yet commits to neither, resulting in dependence on Netflix for culture.
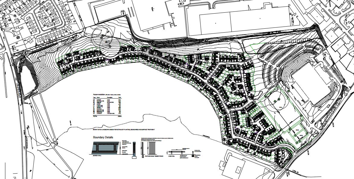
700 house village simulation
Permission for 700 houses to be built onto Scholes village to the north east of Leeds is being saught here:
This is really pushing the envelope of the commuter radius into Leeds city center. 700 houses, at least 700 cars, 2 journeys per day as a minimum. The argument against permission on ecological grounds alone is enough. Scholes already being a suburb of itself sets a precedent, meaning permission will almost certainly be granted. This will in turn set a precedent for any other developer who wishes to lay waste to some farm land in the Leeds hinterland at this outlying radius. When all the farmland is gone, we will move further into the countryside, justified by ‘housing shortage’. It is a ruinous cycle.
700 dwellings could do amazing things to the business and society of urban Leeds. What a wasted opportunity.
Another pub to be levelled
This blog is fast becoming a list of public houses that are threatened with demolition. I can’t help but think that those who apply for demolition of these proprties are probably the same people who extoll the importance of the local as a forum for a community. When its another community though, who cares???
So a pub in this area is no longer viable, this we have to accept, but lets not destroy the building, negating a pub being reinstated in South Crossland. Why not use the property for commercial purposes or flats, and then squeeze in a couple of mews dwelling next door. This would improve the street frontage, retain the pub and fill your pockets with silver Mr Builder!




